Spa 50

Adresse : rue de Spa - 1000 Bruxelles

Maître d’ouvrage : NC

Programme : habitation et cabinet médical

Année de construction : +-1860 – rénovation 2006

Surfaces brutes du projet hors sol - logement: 300m²

Surfaces brutes du projet sous-sol – cabinet médical: 85m²

Montant global des travaux HTVA : NC

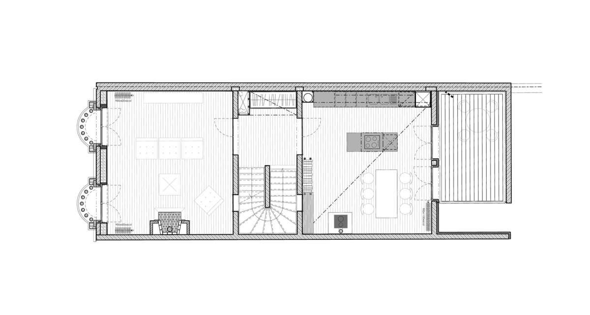
Compris dans une intervention de reconstruction partielle d’un ilôt du Quartier Léopold, cette maison de 1860 a été complètement restructurée. La nouvelle position centrale de la cage d’escalier permet de dégager les pièces avant et arrière sur toute la largeur assez réduite de la parcelle. Mieux proportionnés, les espaces intérieurs tirent parti des percements de la façade d’origine. Le vocabulaire et les matériaux des aménagements intérieurs intemporels s’accordent à cette relecture dépouillée de l’architecture néo-classique.

Photos : Vincent Everarts