Barsy

Adresse : Barsy - 5370 Havelange

Maître d’ouvrage : Ferme de Froidefontaine – Collectif « Fermes de Vie »

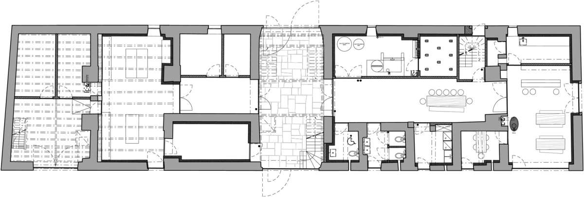
Programme : Coopérative de production et de traitement de légumes biologiques et centre de formation avec restaurant, salle de cours, bibliothèque. Logements individuels et collectifs pour familles et participants aux cours.

Année de construction : ferme existante milieu 19ème siècle – chantier prévu 2021

Surfaces brutes du projet hors sol : coopérative de production 1200M2 - logements particuliers et collectifs 855M2

Surfaces brutes du projet sous-sol : -

Montant global des travaux HTVA : NC

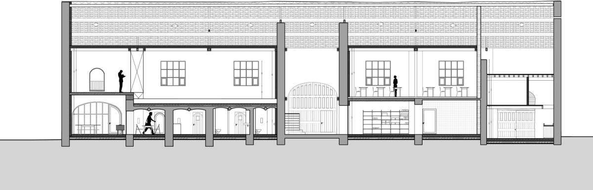
La Ferme de Froidefontaine est un projet implanté sur un site rural incluant des zones bâties et non bâties vouées à un circuit d’activités agroécologiques mixtes. Le projet a pour ambition de rassembler en ces lieux plusieurs acteurs (producteurs, transformateurs, restaurateurs, artisans, etc.) se consacrant à l’alimentation durable, façonnant des produits locaux de qualité tout en préservant les ressources naturelles et la biodiversité. Le projet « FERMES DE VIE » est porté par un collectif d’agriculteurs qui se rassemblent autour d’une coopérative en formation. Ce collectif souhaite construire une cuisine professionnelle de traitement de légumes produits sur place, avec tous services annexes, dans les anciennes granges et porcheries. L’ancien logis, les écuries et étables accueilleront 3 unités de chambres destinées aux participants aux stages. L’ancien corps de logis de la ferme sera transformé en gîte rural, et la laiterie en logement unifamillial pour le résident permanent sur le site.

Les éléments de patrimoine seront conservés et restaurés. Les nouvelles ouvertures seront traitées volontairement par des cadres en béton coulés sur place. Les façades sont conservées en l’état, les interventions étant limitées à un jointoiement ponctuel à la chaux et à la consolidation des désordres. L’affectation de la grange aux grands volumes des ateliers, restaurant, salle de classes ou bibliothèque aux étages permettra de conserver – ou de retrouver – la lecture de la structure d’origine. Les espaces ramassés des porcheries sous voussettes, inscrits dans la grange, seront conservés et réaffectés en loges et sanitaires. L’usage de matériaux naturels et traditionnels et une organisation de chantier raisonnée générant peu de déchets, ainsi que l’emploi de matériaux locaux et récupérés sur place, donneront une dimension écologique ajoutée au projet.