Dailly

Adresse : avenue Dailly - 1030 Bruxelles

Maître d’ouvrage : Sodepro sa

Programme : Ensemble de logements

Année de construction : 1881 - Réaffectation 2015

Surfaces brutes du projet hors sol : 1500m²

Surfaces brutes du projet sous sol : 300m²

Montant global des travaux HTVA : 900.000€

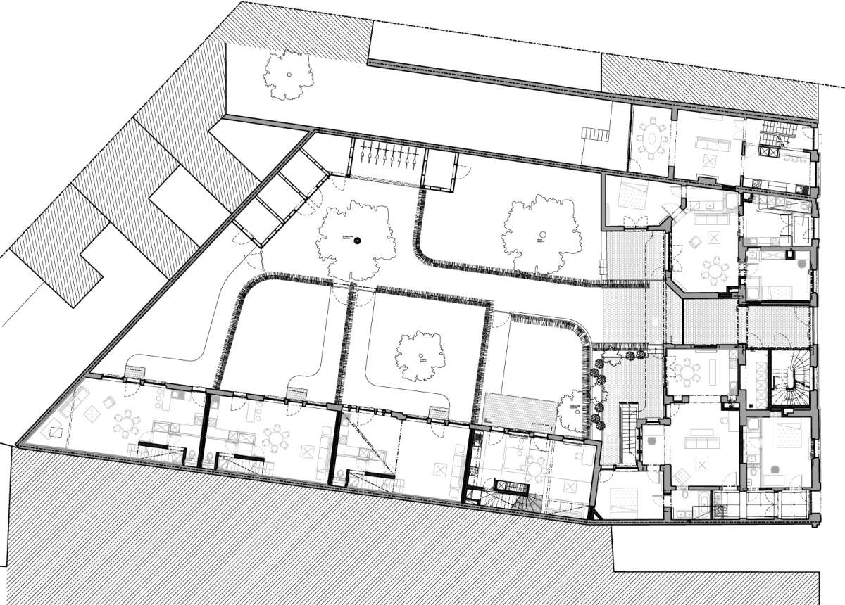
Reconversion en logements d’un ensemble éclectique construit en 1881 et occupé depuis 1929 par l'Œuvre nationale des Aveugles. Le projet vise à réaffecter l’ensemble du site en 14 logements. Dans un souci de respect du patrimoine existant et de l’occupation historique du parcellaire, les bâtiments existants remarquables sont maintenus et rénovés en profondeur. Le corps à rue, comprenant 8 appartements 1 à 2 chambres, est augmenté d’un volume contemporain en place des toitures mansardées existantes résultant de transformations successives. L’aile existante en intérieur d’ilot est reconvertie en habitations unifamiliales 2 chambres avec jardinets privatifs sur le modèle du béguinage. En place de la cassettothèque construite dans les années 80 sera construit un volume bas, à l’échelle des autres bâtiments en intérieur d’îlot.

Photos : Nathalie Van Eygen