Nid

Adresse : rue du Nid - 1050 Bruxelles

Maître d’ouvrage : Herpain-Urbis

Programme : immeuble de logement collectif

Année de construction : 2017

Surfaces brutes du projet hors sol : 2097m²

Surfaces brutes du projet sous-sol : -

Montant global des travaux HTVA : 2.800.000€

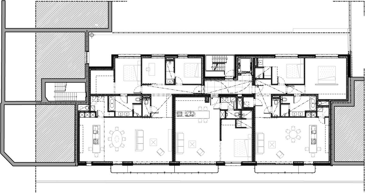
Immeuble de logement neuf comportant 11 places de parking et 14 appartements, répartis de façon équilibrée en 1CH, 2CH ou 3CH. Le niveau élevé de la nappe phréatique, les problématiques de stabilité et de pollution des sols et la difficulté d’implanter une rampe de parking efficace sur une parcelle aussi peu profonde ont autorisé un parking de 10 places et un grand hall ouvert sur le petit jardin intérieur au rez de chaussée. La faible profondeur du bâtiment permet un éclairement naturel optimal, y compris pour les paliers d’étage. La cage d’escalier de secours est extérieure, mais intégrée dans le volume construit. Un retrait en biais est mis en place au +4 assure le raccord harmonieux avec les gabarits voisins ; le +5 présente un retrait continu sur la rue du Nid et s’inscrit dans le gabarit du mitoyen important de l’école. La façade rue du Nid présente un socle en briques ajourées, tour à tour interrompu par des ensembles en bois naturel, et par le vitrage en retrait de l’entrée de l’immeuble. Les étages supérieurs sont également revêtus d’un parement de brique, transition entre l’architecture coloriste de la rue du Nid et le néo-classicisme blanc de la rue du Belvédère. Au +4 et +5, les balcons se déroulent devant les étages en retrait, à la manière de coursives. Dans cet immeuble « très basse énergie », les chaudières sont individuelles, et le renouvellement d’air est assuré par des systèmes de ventilation à double flux.

Photos : Vincent Everarts & Yvan Glavie