Creppe

Adresse : 4900 Creppe

Maître d’ouvrage : NC

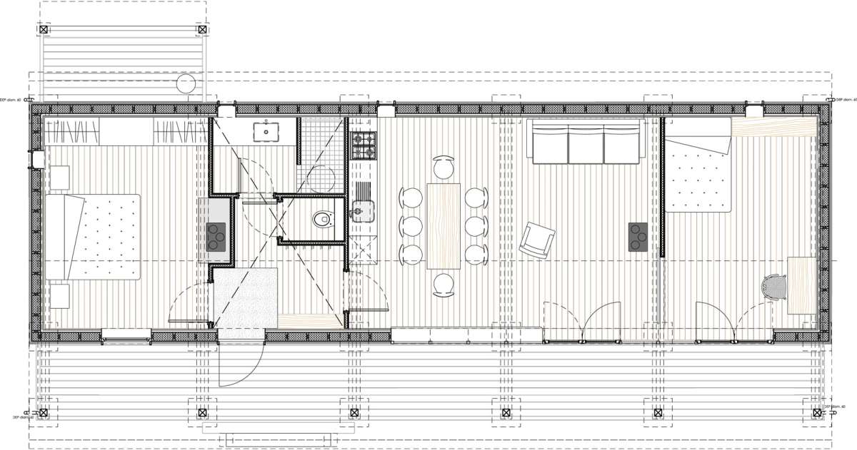
Programme : habitation courte durée pour 1 à 3 personnes

Année de construction : 2020

Surfaces brutes du projet hors sol : 86m²

Surfaces brutes du projet sous-sol : -

Montant global des travaux HTVA : NC

Dans un paysage herbager, sur une parcelle défrichée, petite retraite pour le week-end, pour y vivre simplement, dans un mode de fonctionnement et de consommation minimum. L’architecture se veut discrète dans le paysage, et adopte une volumétrie très simple issue des principes constructifs choisis. Implantée sur le haut et le plat du terrain, posées sur des plots de béton, elle ne génère que très peu de déblais et remblais. Le chauffage est au bois, ramassé ou coupé sur place ; deux poêles de masse performants et peu polluants, alimentés par une prise d’air extérieure, assurent une chauffe rapide en toute sécurité à l’occupant. La salle de bains bénéficie d’une récupération de chaleur à partir du poêle de la chambre.

Photos: Vincent Everarts