Le Grand Serment

Adresse : rue du Grand Serment - 1000 Bruxelles

Maître d’ouvrage : Clicherie Bruxelloise

Programme : logements pour étudiants et appartements 2/3/4CH

Année de construction : 2019-2020

Surfaces brutes du projet hors sol : 2800m²

Surfaces brutes du projet sous-sol : -

Montant global des travaux HTVA : NC

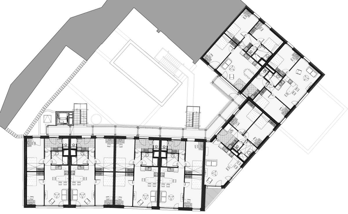
Le site concerné par le projet se situe à l’angle des rues du Houblon et du Grand Serment, dans le quartier Rempart des Moines. La première phase a permis la réaffectation des locaux de la biscuiterie Dandoy en surface commerciale de proximité OKAY. La seconde phase propose la construction de logements en rehausse du socle commercial existant, 21 logements pour 2 ou 3 étudiants sur les 3 premiers niveaux, et 6 logements, dont 2 duplex 4 chambres aux derniers niveaux, soit un ensemble de 27 unités. La contrainte – économique et écologique – de la conservation du socle bâti existant a déterminé le choix d’une architecture à structure légère, déposée sur le rez commercial. Le traitement des façades rue exprime le principe de construction CLT (cross laminated timber) retenu pour des raisons de faisabilité économique (rapidité, coût réduit) et de légèreté. Ce type de construction appliqué à un bâtiment de 6 niveaux, est pour la première fois expérimenté à Bruxelles. Les surfaces largement vitrées des séjours sont triangulées intérieurement ; des pare-soleils, jouant également le rôle de pare-feu, modulent l’apport de lumière. Les toitures plates sont traitées en toitures vertes ou terrasses accessibles, dans une limite garantissant l’absence de nuisances aux voisins directs de la rue du Houblon. Des fonctions partagées pour les étudiants et les familles sont implantées en rez et mezzanine. Le projet est neutre carbone.

Photos : Nicolas Schimp